Сдается однокомнатная квартира
Большая Филевская 3к3, район Филевский парк
06.02.2026






























Стоимость
250 000 ₽
Количество комнат
1 комн
Общая площадь
40 м²
Этаж
11 из 20
Коммунальные платежи
Оплачиваются дополнительно
Мебель
Есть
Требуют комиссию, предлагают другой вариант, жилье уже сдано, неправильная информация? - обязательно сообщите.
Дополнительная информация:
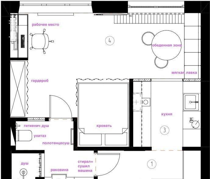
уникальная 1комнатная квартира 40 м2 в жк западный порт на берегу москва рекиописаниеквартира с круговой планировкой, потолки 3 метра, что создает ощущение простора и воздуха. в квартире много естественного света, а вид из окон на запад подарит вам шикарные закаты круглый год.инфраструктура метро фили 5 минут пешком от двери до кремля 20 минут на метро закрытый зеленый двор с круглосуточной охраной подземная парковка, круглосуточная охрана жк бесплатные онлайн тренировки 3 раза в неделю, в теплое время годаво дворе в доме вкусвилл, две пекарни, три студии растяжки и йоги, химчистка и ателье рядом бассейн, корты большого и маленького тенниса, спортзалы парк фили с благоустроенной 3х километровой набережной аэроэкспресс в шереметьево 8 минут пешком мцд d1 8 минут пешком поклонная гора 20 минут пешкомуникальные особенности в этом году открытие набережной с причалом у подъезда, выходите из дома и сразу попадаете к реке с видом на москвасити благодаря близости к реке за окном летают чайки атмосфера в 5 минутах ходьбы отреставрированный храм xvii века с парковой зоной, где живут гуси и коты. каждый час слышен колокольный звон вид на поклонную гору и салюты есть французский балкон в квартире еще никто не жил, ремонт продуман до мелочей депозит 1 месяц возможна рассрочка в стоимость включена генеральная уборка 2 раза в месяц
уникальная 1комнатная квартира 40 м2 в жк западный порт на берегу москва рекиописаниеквартира с круговой планировкой, потолки 3 метра, что создает ощущение простора и воздуха. в квартире много естественного света, а вид из окон на запад подарит вам шикарные закаты круглый год.инфраструктура метро фили 5 минут пешком от двери до кремля 20 минут на метро закрытый зеленый двор с круглосуточной охраной подземная парковка, круглосуточная охрана жк бесплатные онлайн тренировки 3 раза в неделю, в теплое время годаво дворе в доме вкусвилл, две пекарни, три студии растяжки и йоги, химчистка и ателье рядом бассейн, корты большого и маленького тенниса, спортзалы парк фили с благоустроенной 3х километровой набережной аэроэкспресс в шереметьево 8 минут пешком мцд d1 8 минут пешком поклонная гора 20 минут пешкомуникальные особенности в этом году открытие набережной с причалом у подъезда, выходите из дома и сразу попадаете к реке с видом на москвасити благодаря близости к реке за окном летают чайки атмосфера в 5 минутах ходьбы отреставрированный храм xvii века с парковой зоной, где живут гуси и коты. каждый час слышен колокольный звон вид на поклонную гору и салюты есть французский балкон в квартире еще никто не жил, ремонт продуман до мелочей депозит 1 месяц возможна рассрочка в стоимость включена генеральная уборка 2 раза в месяц
Похожие однокомнатные квартиры в районе Филевский парк





