Продается однокомнатная квартира
1-й Красногвардейский проезд 13, район Пресненский
01.04.2026

Стоимость
63 923 120 ₽
1 331 731 рублей за м2
1 331 731 рублей за м2
Количество комнат
1 комн
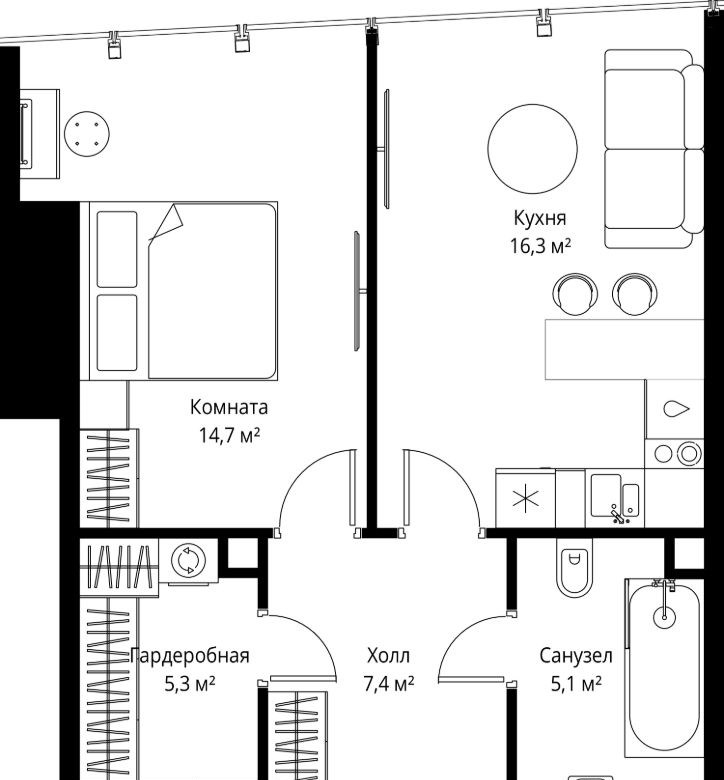
Общая площадь
48 м²
Этаж
41 из 90
Несуществующий объект, неправильная информация? - обязательно сообщите.
Дополнительная информация:
старт продаж квартиры в москвасити в самой инновационной башне оне.в продаже 1комнатная квартира площадью 48.80 м² на 41м этаже.новый современный жилой комплекс премиумкласса оне расположен в самом сердце деловой жизни столицы в москвасити, где захватывающая дух архитектура встречается с безупречным уровнем комфорта. оне находится в пресненском районе, в пешей доступности от станции метро деловой центр. проект был разработан выдающимся архитектором сергеем кузнецовым при участии международного бюро gensler. уникальная скульптурная форма башни, вдохновленная лентой мебиуса, создает новый узнаваемый силуэт делового центра и задает непревзойденный стандарт вертикальной жизни. по замыслу архитекторов, жилой комплекс представляет собой две вертикальные башни, соединенные в нижней и верхней точках. на 85 этаже расположен sky garden самый высокий в европе парк с оазисом природы и секретным садом в облаках, а на 83 этаже парит стеклянный мост sky bridge с панорамными видами.важнейшей особенностью комплекса является его всесторонняя инфраструктура по принципу allinоне закрытый клуб с лаунжами, приватным кинотеатром, бильярдной, рабочими зонами и фитнесом. здесь же расположена торговая галерея бутиков и премиальный гастрокластер, концепцию которого разработал известный ресторатор александр сысоев.особенности комплекса эксклюзивная архитектура от главного архитектора москвы самый высокий в европе небесный сад sky garden на 85 этаже панорамное остекление от пола до потолка во всех квартирах smartинженерия и сервис уровня пятизвездочного отеля приватная клубная инфраструктура allinоне трехуровневый паркинг с зарядными станциями для электрокаров круглосуточная безопасность и консьержсервисрасположение комплекса пешая доступность от станции метро деловой центр 2 минуты до экспоцентра 5 минут до дома правительства 7 минут до кутузовского проспекта
старт продаж квартиры в москвасити в самой инновационной башне оне.в продаже 1комнатная квартира площадью 48.80 м² на 41м этаже.новый современный жилой комплекс премиумкласса оне расположен в самом сердце деловой жизни столицы в москвасити, где захватывающая дух архитектура встречается с безупречным уровнем комфорта. оне находится в пресненском районе, в пешей доступности от станции метро деловой центр. проект был разработан выдающимся архитектором сергеем кузнецовым при участии международного бюро gensler. уникальная скульптурная форма башни, вдохновленная лентой мебиуса, создает новый узнаваемый силуэт делового центра и задает непревзойденный стандарт вертикальной жизни. по замыслу архитекторов, жилой комплекс представляет собой две вертикальные башни, соединенные в нижней и верхней точках. на 85 этаже расположен sky garden самый высокий в европе парк с оазисом природы и секретным садом в облаках, а на 83 этаже парит стеклянный мост sky bridge с панорамными видами.важнейшей особенностью комплекса является его всесторонняя инфраструктура по принципу allinоне закрытый клуб с лаунжами, приватным кинотеатром, бильярдной, рабочими зонами и фитнесом. здесь же расположена торговая галерея бутиков и премиальный гастрокластер, концепцию которого разработал известный ресторатор александр сысоев.особенности комплекса эксклюзивная архитектура от главного архитектора москвы самый высокий в европе небесный сад sky garden на 85 этаже панорамное остекление от пола до потолка во всех квартирах smartинженерия и сервис уровня пятизвездочного отеля приватная клубная инфраструктура allinоне трехуровневый паркинг с зарядными станциями для электрокаров круглосуточная безопасность и консьержсервисрасположение комплекса пешая доступность от станции метро деловой центр 2 минуты до экспоцентра 5 минут до дома правительства 7 минут до кутузовского проспекта
Похожие однокомнатные квартиры в районе Пресненский





