Продается двухкомнатная квартира
3-й Хорошевский проезд 3А, район Хорошевский
05.04.2026




Стоимость
31 500 000 ₽
543 103 рублей за м2
543 103 рублей за м2
Количество комнат
2 комн
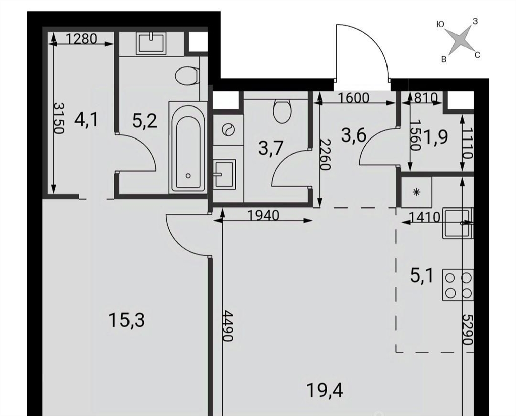
Общая площадь
58 м²
Этаж
20 из 58
Несуществующий объект, неправильная информация? - обязательно сообщите.
Дополнительная информация:
продается стильная и просторная квартира в жилом комплексе премиумкласса amber city идеальный вариант для тех, кто ищет комфортное жилье для семьи, современное пространство для жизни и работы или надежный объект для инвестиций в перспективном районе нового поколения.квартира корпус 5, секция 1 этаж 20 площадь 58,3 м² отделка white box.формат покупкипродажа по переуступке прав требования с регистрацией в росреестре уступка включена в стоимость.доступна покупка за наличные, в ипотеку или в рассрочку до 21.04.2028 года с фиксированным ежемесячным платежом 200 000 рублей.срок сдачи 3 квартал 2028 года.amber city это масштабный lifehub, в котором всё важное и полезное будет находится в пешей доступности от подъезда. он откроет каждому безграничные возможности для отдыха, работы, самореализации и удовольствий. в лобби и холлах amber city футуристичный дизайн обеспечит уют и непередаваемое чувство комфорта.для особого комфорта в лобби будут лаунжзоны для встречи гостей от 5 до 7 современных скоростных лифтов с временем ожидания до 60 секунд колясочная с пеленальной стойки для мойки лап питомцев гостевые санузлы постаматы.в вашем лобби будет работать круглосуточная стойка ресепшен, а консьерж поможет вам решить множество бытовых вопросов клиентский сервис 247365 организация работы в коворкинге аренда переговорных и зала для мероприятий помощь с переездом бронирование услуг клининга посещение детской игровой комнаты.в домах будет предусмотрена центральная система кондиционирования чилленфанкойл. использование такой системы позволит поддерживать комфортную температуру в квартире в любое время года. в amber city все квартиры запланированы как умные. вы легко сможете управлять со своего смартфона управление верхним освещением включение и выключение розеточной группы датчики протечки во всех мокрых зонах точечное управление освещением в прихожей, кухне и комнатах перекрытие кранов горячей и холодной воды на входе в квартиру.обустройство собственной территории amber city, тщательно продумана.главной артерией квартала станет собственный зеленый бульвар. он начнется с площади у входа на территорию и, пройдет через ключевые площади с артобъектами, водными зонами. деревья, высаженные вдоль бульвара, создадут прогулочную зону и защитят жителей от городского шума. дополнительные пространства для отдыха будут размещены в закрытых зеленых дворах на стилобате.транспортная доступность квартал отличается отличной транспортной доступностью метро и мцд беговая 5 минут пешком, станция метро звенигородская строящаяся 10 минут пешком. на автомобиле звенигородское шоссе 3 минуты, ttk 5 минут, хорошёвское шоссе 9 минут, садовое кольцо 12 минут, серебряный бор 8 минут , москвасити 10 минут, кремль 20 минут, аэропорт шереметьево 40 минут.квартиру реализует отдел вторичной недвижимости гк фск бесплатное сопровождение сделки, юристами застройщика.
продается стильная и просторная квартира в жилом комплексе премиумкласса amber city идеальный вариант для тех, кто ищет комфортное жилье для семьи, современное пространство для жизни и работы или надежный объект для инвестиций в перспективном районе нового поколения.квартира корпус 5, секция 1 этаж 20 площадь 58,3 м² отделка white box.формат покупкипродажа по переуступке прав требования с регистрацией в росреестре уступка включена в стоимость.доступна покупка за наличные, в ипотеку или в рассрочку до 21.04.2028 года с фиксированным ежемесячным платежом 200 000 рублей.срок сдачи 3 квартал 2028 года.amber city это масштабный lifehub, в котором всё важное и полезное будет находится в пешей доступности от подъезда. он откроет каждому безграничные возможности для отдыха, работы, самореализации и удовольствий. в лобби и холлах amber city футуристичный дизайн обеспечит уют и непередаваемое чувство комфорта.для особого комфорта в лобби будут лаунжзоны для встречи гостей от 5 до 7 современных скоростных лифтов с временем ожидания до 60 секунд колясочная с пеленальной стойки для мойки лап питомцев гостевые санузлы постаматы.в вашем лобби будет работать круглосуточная стойка ресепшен, а консьерж поможет вам решить множество бытовых вопросов клиентский сервис 247365 организация работы в коворкинге аренда переговорных и зала для мероприятий помощь с переездом бронирование услуг клининга посещение детской игровой комнаты.в домах будет предусмотрена центральная система кондиционирования чилленфанкойл. использование такой системы позволит поддерживать комфортную температуру в квартире в любое время года. в amber city все квартиры запланированы как умные. вы легко сможете управлять со своего смартфона управление верхним освещением включение и выключение розеточной группы датчики протечки во всех мокрых зонах точечное управление освещением в прихожей, кухне и комнатах перекрытие кранов горячей и холодной воды на входе в квартиру.обустройство собственной территории amber city, тщательно продумана.главной артерией квартала станет собственный зеленый бульвар. он начнется с площади у входа на территорию и, пройдет через ключевые площади с артобъектами, водными зонами. деревья, высаженные вдоль бульвара, создадут прогулочную зону и защитят жителей от городского шума. дополнительные пространства для отдыха будут размещены в закрытых зеленых дворах на стилобате.транспортная доступность квартал отличается отличной транспортной доступностью метро и мцд беговая 5 минут пешком, станция метро звенигородская строящаяся 10 минут пешком. на автомобиле звенигородское шоссе 3 минуты, ttk 5 минут, хорошёвское шоссе 9 минут, садовое кольцо 12 минут, серебряный бор 8 минут , москвасити 10 минут, кремль 20 минут, аэропорт шереметьево 40 минут.квартиру реализует отдел вторичной недвижимости гк фск бесплатное сопровождение сделки, юристами застройщика.
Похожие двухкомнатные квартиры в районе Хорошевский





