Продается двухкомнатная квартира
4-й Монетчиковский пер 1/6С1, район Замоскворечье
19.03.2026


















Стоимость
24 500 000 ₽
415 254 рублей за м2
415 254 рублей за м2
Количество комнат
2 комн
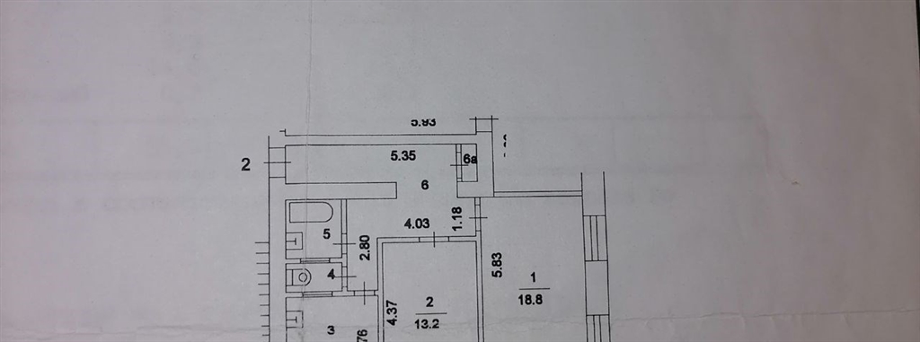
Общая площадь
59 м²
Этаж
1 из 5
Несуществующий объект, неправильная информация? - обязательно сообщите.
Дополнительная информация:
продаю 2х комнатную квартиру м. павелецкаялучшая цена в этом районе. агентам просьба не беспокоить. вашему вниманию предлагается 2х комнатная квартира в шаговой доступности от метро павелецкая 4 минуты пешком ул. 4й монетчиковский переулок д. 16 стр.1 на 1ом этаже высокий первый этаж 5ти этажного кирпичного дома. комнаты изолированные. площадь квартиры 59,53218,813,2 кухня 7,8, стеклопакеты пластиковые, пол паркет, су раздельный. два взрослый собственника, в собственности более 5ти лет, полная сумма в договоре. огороженная территория. внутренний дворик с детской площадкой и парковкой для машин. оперативный показ.
продаю 2х комнатную квартиру м. павелецкаялучшая цена в этом районе. агентам просьба не беспокоить. вашему вниманию предлагается 2х комнатная квартира в шаговой доступности от метро павелецкая 4 минуты пешком ул. 4й монетчиковский переулок д. 16 стр.1 на 1ом этаже высокий первый этаж 5ти этажного кирпичного дома. комнаты изолированные. площадь квартиры 59,53218,813,2 кухня 7,8, стеклопакеты пластиковые, пол паркет, су раздельный. два взрослый собственника, в собственности более 5ти лет, полная сумма в договоре. огороженная территория. внутренний дворик с детской площадкой и парковкой для машин. оперативный показ.
Похожие двухкомнатные квартиры в районе Замоскворечье





