Продается однокомнатная квартира
5-я Мякининская 49, район Кунцево
21.11.2025












Стоимость
12 490 000 ₽
223 035 рублей за м2
223 035 рублей за м2
Количество комнат
1 комн
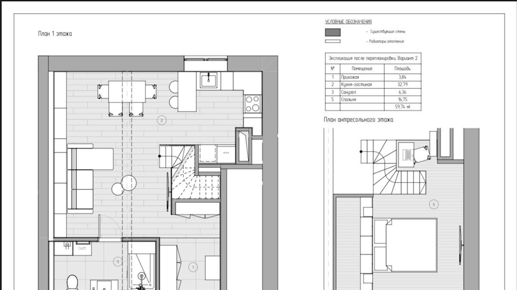
Общая площадь
56 м²
Этаж
3 из 3
Несуществующий объект, неправильная информация? - обязательно сообщите.
Дополнительная информация:
продается стильная двухуровневая квартира. дом находится в престижном районе вдали от шоссе , благодаря чему вы будете наслаждаться тишиной и уютом. высокие потолки добавляют простора и света, а окна выходят во двор, что обеспечивает спокойствие и свежий воздух.в квартире сделан дизайнерский ремонт, который подчеркивает современный стиль и функциональность пространства. кухня оборудована всей необходимой техникой. в санузле установлена современная сантехника. приятный бонус удобная планировка, которая позволяет эффективно использовать каждый квадратный метр.дом находится в ухоженном состоянии и оснащен наземной парковкой, где всегда найдется место для вашего автомобиля. близость к метро всего 20минут пешком позволяет быстро добираться до всех значимых точек города. в районе развита инфраструктура рядом школы, детские сады и магазины, что делает это место идеальным для проживания семей с детьми.приглашаем вас на просмотр, чтобы лично оценить все достоинства этой квартиры. звоните и записывайтесь на удобное для вас время. эта квартира ждет именно вас
продается стильная двухуровневая квартира. дом находится в престижном районе вдали от шоссе , благодаря чему вы будете наслаждаться тишиной и уютом. высокие потолки добавляют простора и света, а окна выходят во двор, что обеспечивает спокойствие и свежий воздух.в квартире сделан дизайнерский ремонт, который подчеркивает современный стиль и функциональность пространства. кухня оборудована всей необходимой техникой. в санузле установлена современная сантехника. приятный бонус удобная планировка, которая позволяет эффективно использовать каждый квадратный метр.дом находится в ухоженном состоянии и оснащен наземной парковкой, где всегда найдется место для вашего автомобиля. близость к метро всего 20минут пешком позволяет быстро добираться до всех значимых точек города. в районе развита инфраструктура рядом школы, детские сады и магазины, что делает это место идеальным для проживания семей с детьми.приглашаем вас на просмотр, чтобы лично оценить все достоинства этой квартиры. звоните и записывайтесь на удобное для вас время. эта квартира ждет именно вас
Похожие однокомнатные квартиры в районе Кунцево





