Продается двухкомнатная квартира
5-я Соколиной Горы 21А, район Соколиная гора
07.02.2026



























Стоимость
22 300 000 ₽
384 482 рублей за м2
384 482 рублей за м2
Количество комнат
2 комн
Общая площадь
58 м²
Этаж
12 из 20
Несуществующий объект, неправильная информация? - обязательно сообщите.
Дополнительная информация:
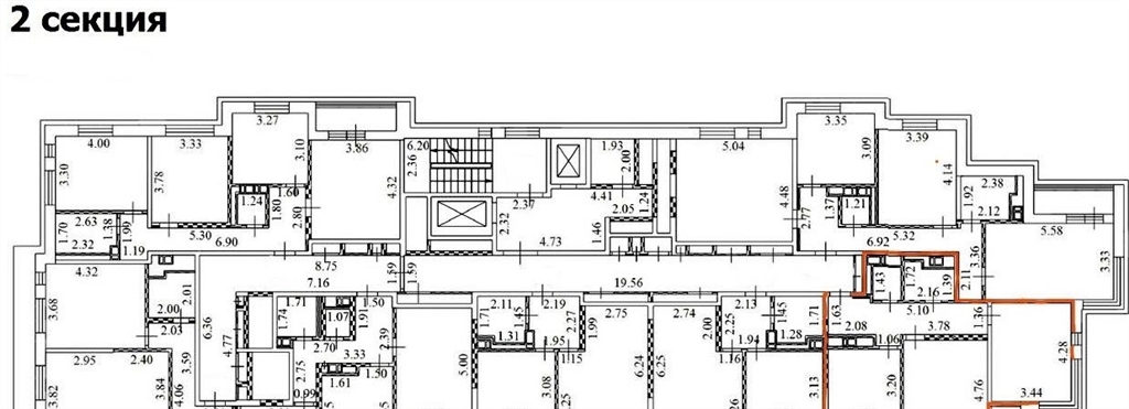
квартира с отделкой в новостройке свободная продажа. новая 2комнат.квартира на 12 этаже в доменовостройке 2024г. переменной этажности 13 и 20 этажей. общая лощадь 58 кв.м. лоджия 3 кв.м., жилая площадь 32.1 кв.м., комнаты изолированные 17.3 кв.м. и 14.8 кв.м., кухня 10.1 кв.м., су раздельный. окна во двор, панорамное остекление лоджии, никаких стояков разводка отопления под полом на полу в кухне, лоджии, санузле и коридоре керамогранит корзина для кондиционера, домофон, потолки 2.7м. лучшая планировка в доме стены комнат не граничат с кухнями или санузлами соседних квартир, вид из окон на две стороны юг и восток с панорамой на измайловский парк, до которого 10 минут пешком. юридически чистая реновационный договор с дги г.москвы, прежняя квартира была в собственности более 15 лет, два совершеннолетних собственника, в квартире никто не зарегистрирован и не живёт, продавцы имеют в собственности также иное жилье. дом построен по индивидуальному проекту и сдан в эксплуатацию в декабре 2024 года материал стен кирпичные, монолитные жб трубопроводы из оцинкованных труб фасад отделан вентилируемой противопожарной плиткой и облицован керамогранитом первый этаж подъезда полностью отделан плиткой и оборудован колясочной, комнатой для консъержа, санузлом в доме есть мусоропровод и подземный паркинг с лифтовым спуском из подъезда дома на 88 машиномест. во дворе детская и спортивная площадки, есть бесплатная наземная парковка с другой стороны дома, въезд во двор закрыт шлагбаумом, работает совет дома. дом в пешей доступности от метро шоссе энтузиастов и станции мцк соколиная гора в историческом районе москвы с развитой инфраструктурой магазины, медцентры, кафе, школыдетсады, спортивные объекты, рядом измайловский парк и стадион крылья советов. сделку ведет юрист, просьба к агентам и риэлторам звонить только при наличии реальных покупателей. никакие договора с агентствами на рекламу, продвижение, помощь в продаже и т.д. собственниками с агентствами не заключаются.
квартира с отделкой в новостройке свободная продажа. новая 2комнат.квартира на 12 этаже в доменовостройке 2024г. переменной этажности 13 и 20 этажей. общая лощадь 58 кв.м. лоджия 3 кв.м., жилая площадь 32.1 кв.м., комнаты изолированные 17.3 кв.м. и 14.8 кв.м., кухня 10.1 кв.м., су раздельный. окна во двор, панорамное остекление лоджии, никаких стояков разводка отопления под полом на полу в кухне, лоджии, санузле и коридоре керамогранит корзина для кондиционера, домофон, потолки 2.7м. лучшая планировка в доме стены комнат не граничат с кухнями или санузлами соседних квартир, вид из окон на две стороны юг и восток с панорамой на измайловский парк, до которого 10 минут пешком. юридически чистая реновационный договор с дги г.москвы, прежняя квартира была в собственности более 15 лет, два совершеннолетних собственника, в квартире никто не зарегистрирован и не живёт, продавцы имеют в собственности также иное жилье. дом построен по индивидуальному проекту и сдан в эксплуатацию в декабре 2024 года материал стен кирпичные, монолитные жб трубопроводы из оцинкованных труб фасад отделан вентилируемой противопожарной плиткой и облицован керамогранитом первый этаж подъезда полностью отделан плиткой и оборудован колясочной, комнатой для консъержа, санузлом в доме есть мусоропровод и подземный паркинг с лифтовым спуском из подъезда дома на 88 машиномест. во дворе детская и спортивная площадки, есть бесплатная наземная парковка с другой стороны дома, въезд во двор закрыт шлагбаумом, работает совет дома. дом в пешей доступности от метро шоссе энтузиастов и станции мцк соколиная гора в историческом районе москвы с развитой инфраструктурой магазины, медцентры, кафе, школыдетсады, спортивные объекты, рядом измайловский парк и стадион крылья советов. сделку ведет юрист, просьба к агентам и риэлторам звонить только при наличии реальных покупателей. никакие договора с агентствами на рекламу, продвижение, помощь в продаже и т.д. собственниками с агентствами не заключаются.
Похожие двухкомнатные квартиры в районе Соколиная гора





