Продается двухкомнатная квартира
6-я Радиальная 7/1к2, район Бирюлево Восточное
24.02.2026







Стоимость
18 800 000 ₽
254 054 рублей за м2
254 054 рублей за м2
Количество комнат
2 комн
Общая площадь
74 м²
Этаж
9 из 20
Несуществующий объект, неправильная информация? - обязательно сообщите.
Дополнительная информация:
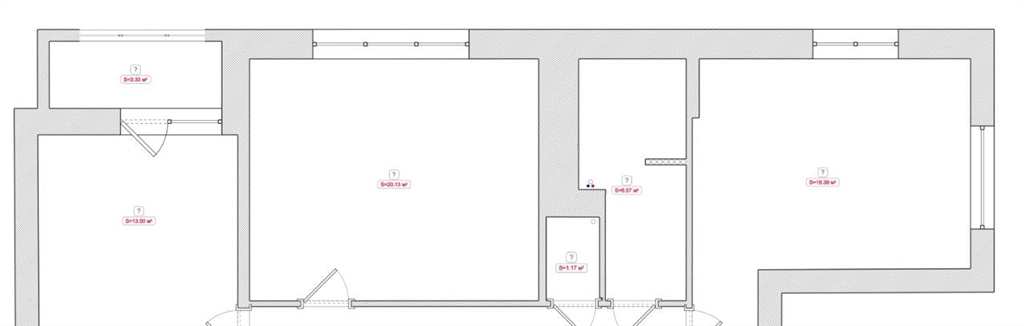
продажа просторной квартиры 74,5 м² в перспективном районе бирилюво восточное. жк царицыно 2.просторная квартира с потенциалом для создания идеального пространстваобщая площадь 74,5 м²планировкадве светлые изолированные спальни 20,1 м² и 16,8 м²функциональная кухня 13,5 м² с выходом на застекленную лоджию 3,3 м²раздельный санузел 4 м² и 1,2 м²практичный гардероб 1,5 м²без ремонтапреимущества расположенияжилая площадь составляет 36,9 м²9 этаж всего 20 оптимальная высота для комфортного проживаниявысокие потолки 2,7 м простор и свободавид во двор тишина и уютквартира находится во внутренней части микрорайона, закрытая другими домамисовременный дом с 2 пассажирскими и 1 грузовым лифтамиразвитая инфраструктураобразование и творчество школы, детские сады, колледж декоративноприкладного искусства, культурный центр слава, музыкальная школа 74, развивашки для детей. рядом с домом достраивается большая школа и детский сад.медицина современная поликлиника по московскому стандарту, станция скорой медицинской помощи, гкб имени в. м. буянова, медсиотдых и спорт музейзаповедник царицыно, бирюлёвский дендропарк, фитнес ddx, women secrets, xfit. принято решение о строительстве крытого катка.транспортная доступностьметро царицыно 6 остановокметро пражская 5 остановокмцд2 покровское 1 остановкабирюлёвотоварная 2 остановкиновая станция метро каспийская 2029 г. всего 800 м от домаудобный выезд на мкадюридическая информацияодин взрослый собственник, владение с 2023 годабез обремененийв квартире зарегистрированы 2 взрослыхвозможна покупка в ипотекуполная стоимость в договореквартира отлично подойдет как для личного проживания, так и для сдачи в аренду. хороший вариант для тех, кто хочет создать квартиру своей мечты или инвестировать в недвижимость с потенциалом роста стоимости.в декабре 2025 сергей собянин анонсировал планы по комплексному развития бирюлёво восточное.
продажа просторной квартиры 74,5 м² в перспективном районе бирилюво восточное. жк царицыно 2.просторная квартира с потенциалом для создания идеального пространстваобщая площадь 74,5 м²планировкадве светлые изолированные спальни 20,1 м² и 16,8 м²функциональная кухня 13,5 м² с выходом на застекленную лоджию 3,3 м²раздельный санузел 4 м² и 1,2 м²практичный гардероб 1,5 м²без ремонтапреимущества расположенияжилая площадь составляет 36,9 м²9 этаж всего 20 оптимальная высота для комфортного проживаниявысокие потолки 2,7 м простор и свободавид во двор тишина и уютквартира находится во внутренней части микрорайона, закрытая другими домамисовременный дом с 2 пассажирскими и 1 грузовым лифтамиразвитая инфраструктураобразование и творчество школы, детские сады, колледж декоративноприкладного искусства, культурный центр слава, музыкальная школа 74, развивашки для детей. рядом с домом достраивается большая школа и детский сад.медицина современная поликлиника по московскому стандарту, станция скорой медицинской помощи, гкб имени в. м. буянова, медсиотдых и спорт музейзаповедник царицыно, бирюлёвский дендропарк, фитнес ddx, women secrets, xfit. принято решение о строительстве крытого катка.транспортная доступностьметро царицыно 6 остановокметро пражская 5 остановокмцд2 покровское 1 остановкабирюлёвотоварная 2 остановкиновая станция метро каспийская 2029 г. всего 800 м от домаудобный выезд на мкадюридическая информацияодин взрослый собственник, владение с 2023 годабез обремененийв квартире зарегистрированы 2 взрослыхвозможна покупка в ипотекуполная стоимость в договореквартира отлично подойдет как для личного проживания, так и для сдачи в аренду. хороший вариант для тех, кто хочет создать квартиру своей мечты или инвестировать в недвижимость с потенциалом роста стоимости.в декабре 2025 сергей собянин анонсировал планы по комплексному развития бирюлёво восточное.
Похожие двухкомнатные квартиры в районе Бирюлево Восточное





