Продается двухкомнатная квартира
Цюрупы 8К1, район Черемушки
05.03.2026





















Стоимость
20 750 000 ₽
370 535 рублей за м2
370 535 рублей за м2
Количество комнат
2 комн
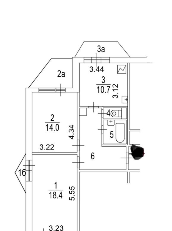
Общая площадь
56 м²
Этаж
17 из 17
Несуществующий объект, неправильная информация? - обязательно сообщите.
Дополнительная информация:
продается видовая двухкомнатная квартира с отличным видом.выше этажом есть тех.этаж.квартира с ремонтом под аренду.здесь есть где разгуляться дизайнерской мысли, квартира подходит для воплощения множества идей по планировке и зонированию пространства.площадь кухни позволяет сделать небольшую кухнюгостиную.особенностью является наличие четырёх балконов, которые можно превратить в уютные места для отдыха или практичного хранения. с них открываются прекрасные виды, в том числе на сталинскую высотку.
продается видовая двухкомнатная квартира с отличным видом.выше этажом есть тех.этаж.квартира с ремонтом под аренду.здесь есть где разгуляться дизайнерской мысли, квартира подходит для воплощения множества идей по планировке и зонированию пространства.площадь кухни позволяет сделать небольшую кухнюгостиную.особенностью является наличие четырёх балконов, которые можно превратить в уютные места для отдыха или практичного хранения. с них открываются прекрасные виды, в том числе на сталинскую высотку.
Похожие двухкомнатные квартиры в районе Черемушки





