Продается двухкомнатная квартира
Донецкая 30к1, район Марьино
15.04.2026














Стоимость
24 900 000 ₽
366 176 рублей за м2
366 176 рублей за м2
Количество комнат
2 комн
Общая площадь
68 м²
Этаж
5 из 6
Несуществующий объект, неправильная информация? - обязательно сообщите.
Дополнительная информация:
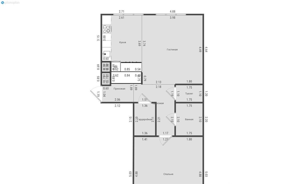
продаётся светлая 2комнатная квартира с качественным ремонтом, мебелью и бытовой техникой в жк домашний. 68,3 м², 5 этаж, малоэтажный корпус. удачная планировка распашонка окна на две стороны, поэтому в квартире много света и воздуха. квартира полностью готова к проживанию кухня объединена с гостиной, кондиционер, есть отдельная гардеробная 2,8 м², вместительный шкаф в прихожей, просторная спальня 21 м², в санузле установлен бойлер, тропический душ в ванной, стиральная машина , удобные места хранения. на лестничной клетке есть небольшая кладовка для хранения вещей. квартира выгодно отличается ценой от аналогичных предложений, к тому же, за эту же стоимость можно купить квартиру в новом корпусе комплекса только в бетоне. а здесь, повторюсь, и качественный ремонт, и мебель, и бытовая техника. жк домашний современный жилой комплекс на берегу москвыреки в развивающейся части ювао. благодаря новым развязкам очень удобная транспортная доступность. район выигрывает и за счёт пешей доступности до мцд курьяново. город также продолжает развивать эту локацию в марьино анонсированы новые этапы благоустройства, в том числе рядом с курьяновской набережной. внутри комплекса уже сложилась удобная повседневная инфраструктура магазины, аптеки, пункты выдачи, прогулочные пространства и озеленённая территория. всегда есть место для парковки у дома. новый дом 2019 года, современная жилая среда.один сорокалетний собственник, представитель которого продает квартиру. быстрый выход на сделку.
продаётся светлая 2комнатная квартира с качественным ремонтом, мебелью и бытовой техникой в жк домашний. 68,3 м², 5 этаж, малоэтажный корпус. удачная планировка распашонка окна на две стороны, поэтому в квартире много света и воздуха. квартира полностью готова к проживанию кухня объединена с гостиной, кондиционер, есть отдельная гардеробная 2,8 м², вместительный шкаф в прихожей, просторная спальня 21 м², в санузле установлен бойлер, тропический душ в ванной, стиральная машина , удобные места хранения. на лестничной клетке есть небольшая кладовка для хранения вещей. квартира выгодно отличается ценой от аналогичных предложений, к тому же, за эту же стоимость можно купить квартиру в новом корпусе комплекса только в бетоне. а здесь, повторюсь, и качественный ремонт, и мебель, и бытовая техника. жк домашний современный жилой комплекс на берегу москвыреки в развивающейся части ювао. благодаря новым развязкам очень удобная транспортная доступность. район выигрывает и за счёт пешей доступности до мцд курьяново. город также продолжает развивать эту локацию в марьино анонсированы новые этапы благоустройства, в том числе рядом с курьяновской набережной. внутри комплекса уже сложилась удобная повседневная инфраструктура магазины, аптеки, пункты выдачи, прогулочные пространства и озеленённая территория. всегда есть место для парковки у дома. новый дом 2019 года, современная жилая среда.один сорокалетний собственник, представитель которого продает квартиру. быстрый выход на сделку.
Похожие двухкомнатные квартиры в районе Марьино





