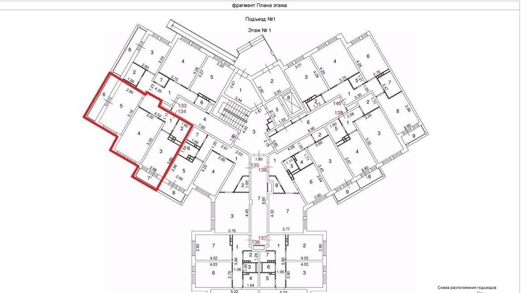
Продается двухкомнатная квартира
Ирландская 4к2, район
14.04.2026
















Стоимость
8 124 810 ₽
153 298 рублей за м2
153 298 рублей за м2
Количество комнат
2 комн
Общая площадь
53 м²
Этаж
1 из 4
Несуществующий объект, неправильная информация? - обязательно сообщите.
Дополнительная информация:
объект реализуется на городских торгахдополнительная информация и документы расположены на инвестиционном портале города москвы по ссылкеhttpsinvestmoscow. rutenderstender20047364utmsourcecianutmme diumrazmeshenieobectovutmcampaignflatsaleutm content20047364
объект реализуется на городских торгахдополнительная информация и документы расположены на инвестиционном портале города москвы по ссылкеhttpsinvestmoscow. rutenderstender20047364utmsourcecianutmme diumrazmeshenieobectovutmcampaignflatsaleutm content20047364
Похожие двухкомнатные квартиры в районе





