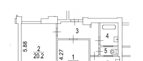
Продается двухкомнатная квартира
Ивана Бабушкина 15к1-2, район Академический
14.01.2026


















Стоимость
21 700 000 ₽
409 433 рублей за м2
409 433 рублей за м2
Количество комнат
2 комн
Общая площадь
53 м²
Этаж
5 из 5
Несуществующий объект, неправильная информация? - обязательно сообщите.
Дополнительная информация:
продается уютная двухкомнатная квартира расположенная в югозападном административном округе юзао москвы, в районе академический, на улице ивана бабушкина. общая площадь составляет 53.8 кв. м с просторной кухней 7.5 кв. м. квартира находится на 5 этаже кирпичного дома, построенного в 1956 году. высокие потолки в 3 метра добавляют пространству объема и света. из окон открывается вид на тихий двор, поэтому всегда будет спокойно и комфортно. есть один балкон, где можно устроить зону отдыха.в квартире выполнен косметический ремонт, который позволит вам въехать и жить без дополнительных затрат. комнаты светлые и просторные, а кухня удобная и функциональная. санузел совмещенный, что оптимально для небольшой семьи. дом находится в хорошем состоянии, с наземной парковкой для вашего автомобиля. это избавит вас от проблем с поиском свободного места для парковки. интеллигентные и дружелюбные соседи.район обладает развитой инфраструктурой. в шаговой доступности школы, детские сады и клиники, что делает его идеальным для семей с детьми. магазины и другие объекты первой необходимости также находятся рядом, поэтому можно легко решать все бытовые вопросы. до метро профсоюзная всего 12 минут пешком, что удобно для быстрого перемещения по городу.великолепный зелёный район, много парков и скверовуютная атмосфера, сочетание советских домов и новостроек.продажа квартиры осуществляется через агентство, все документы готовы к сделке. возможна покупка в ипотеку. обременений нет, юридическая чистота сделки гарантирована.приглашаем вас на просмотр этой замечательной квартиры. записывайтесь заранее, чтобы забронировать удобное время
продается уютная двухкомнатная квартира расположенная в югозападном административном округе юзао москвы, в районе академический, на улице ивана бабушкина. общая площадь составляет 53.8 кв. м с просторной кухней 7.5 кв. м. квартира находится на 5 этаже кирпичного дома, построенного в 1956 году. высокие потолки в 3 метра добавляют пространству объема и света. из окон открывается вид на тихий двор, поэтому всегда будет спокойно и комфортно. есть один балкон, где можно устроить зону отдыха.в квартире выполнен косметический ремонт, который позволит вам въехать и жить без дополнительных затрат. комнаты светлые и просторные, а кухня удобная и функциональная. санузел совмещенный, что оптимально для небольшой семьи. дом находится в хорошем состоянии, с наземной парковкой для вашего автомобиля. это избавит вас от проблем с поиском свободного места для парковки. интеллигентные и дружелюбные соседи.район обладает развитой инфраструктурой. в шаговой доступности школы, детские сады и клиники, что делает его идеальным для семей с детьми. магазины и другие объекты первой необходимости также находятся рядом, поэтому можно легко решать все бытовые вопросы. до метро профсоюзная всего 12 минут пешком, что удобно для быстрого перемещения по городу.великолепный зелёный район, много парков и скверовуютная атмосфера, сочетание советских домов и новостроек.продажа квартиры осуществляется через агентство, все документы готовы к сделке. возможна покупка в ипотеку. обременений нет, юридическая чистота сделки гарантирована.приглашаем вас на просмотр этой замечательной квартиры. записывайтесь заранее, чтобы забронировать удобное время
Похожие двухкомнатные квартиры в районе Академический





