Продается двухкомнатная квартира
Липовый Парк 6, район
22.01.2026





































Стоимость
17 000 000 ₽
250 000 рублей за м2
250 000 рублей за м2
Количество комнат
2 комн
Общая площадь
68 м²
Этаж
3 из 15
Несуществующий объект, неправильная информация? - обязательно сообщите.
Дополнительная информация:
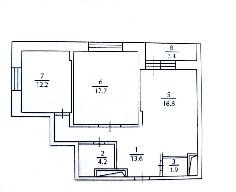
продается уютная евротрешка в самом центре липового парка в пешей доступности до метро коммунарка, новомосковская. удобная планировка окна на 2 стороныгостиная с кухней 16.8 кв.ммастер спальня 17.7 кв.мспальня 2 12.2 кв.мпросторная прихожая 13.6. кв.мванная 4.2 кв.мтуалет 2 кв.мбалкон с панорамным остеклением 3.4 кв.м один взрослый собственник до 50 лет маткапитала нет полная стоимость в договоре более 8 лет в собственности обременений нетремонт делался из качественных материалов. мебель и бытовая техника остается в квартире. в шаговой доступности вся необходимая инфраструктура для комфортного проживания. во дворе расположен фитнес клуб escalada с бассейном, школа 2070 в соседнем дворе, детский сад во дворе дома. в доме находится управляющая компания.автобусная остановка 1 минута пешком.просмотр по договоренности.
продается уютная евротрешка в самом центре липового парка в пешей доступности до метро коммунарка, новомосковская. удобная планировка окна на 2 стороныгостиная с кухней 16.8 кв.ммастер спальня 17.7 кв.мспальня 2 12.2 кв.мпросторная прихожая 13.6. кв.мванная 4.2 кв.мтуалет 2 кв.мбалкон с панорамным остеклением 3.4 кв.м один взрослый собственник до 50 лет маткапитала нет полная стоимость в договоре более 8 лет в собственности обременений нетремонт делался из качественных материалов. мебель и бытовая техника остается в квартире. в шаговой доступности вся необходимая инфраструктура для комфортного проживания. во дворе расположен фитнес клуб escalada с бассейном, школа 2070 в соседнем дворе, детский сад во дворе дома. в доме находится управляющая компания.автобусная остановка 1 минута пешком.просмотр по договоренности.
Похожие двухкомнатные квартиры в районе





