Продается двухкомнатная квартира
Николая Озерова 8к1, район Покровское-Стрешнево
01.12.2025
































Стоимость
25 900 000 ₽
528 571 рублей за м2
528 571 рублей за м2
Количество комнат
2 комн
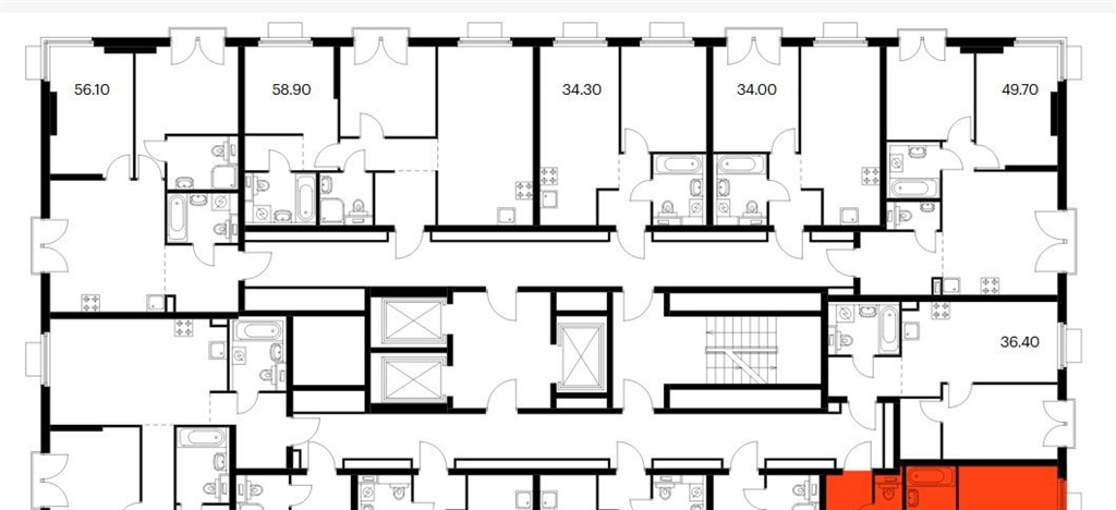
Общая площадь
49 м²
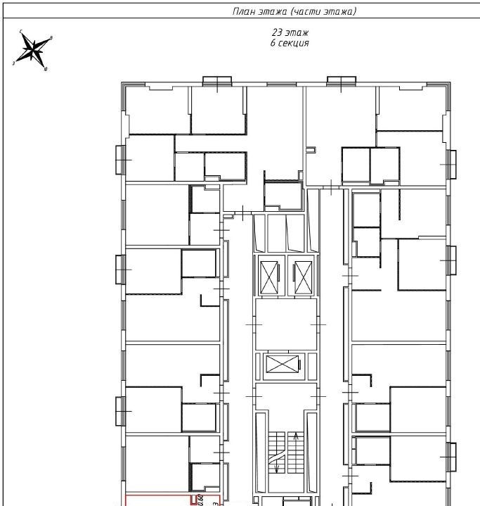
Этаж
23 из 24
Несуществующий объект, неправильная информация? - обязательно сообщите.
Дополнительная информация:
видовая квартира. лучшая квартира этого жк. собственность оформлена. полная стоимость в договоре. дешевле застройщика. квартира формата евротрешки с увеличенным потолком 3 м. есть французский балкон, окна выходят во двор на югозапад, на новую современную школу it полигоном и робоклассом. благоустроенный и озелененный двор без машин. holland park комплекс на берегу москвареки с красивой набережной зоной и владимирским храмом. хорошая транспортная доступность 500 метров до метро спартак.
видовая квартира. лучшая квартира этого жк. собственность оформлена. полная стоимость в договоре. дешевле застройщика. квартира формата евротрешки с увеличенным потолком 3 м. есть французский балкон, окна выходят во двор на югозапад, на новую современную школу it полигоном и робоклассом. благоустроенный и озелененный двор без машин. holland park комплекс на берегу москвареки с красивой набережной зоной и владимирским храмом. хорошая транспортная доступность 500 метров до метро спартак.
Похожие двухкомнатные квартиры в районе Покровское-Стрешнево





