Продается однокомнатная квартира
Октябрьская 103, район Марьина роща
07.03.2026








Стоимость
31 070 419 ₽
757 815 рублей за м2
757 815 рублей за м2
Количество комнат
1 комн
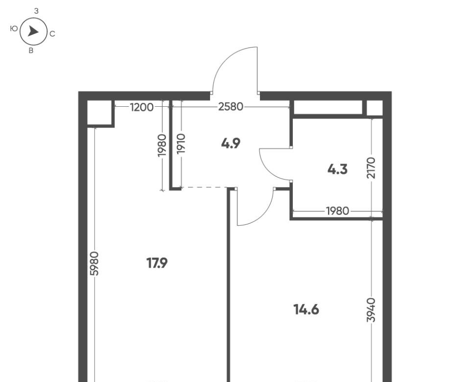
Общая площадь
41 м²
Этаж
10 из 16
Несуществующий объект, неправильная информация? - обязательно сообщите.
Дополнительная информация:
продается 1к квартира без отделки в жк мариин парк.общая площадь квартиры 41.7 кв. м, этаж 10 из 16.тип дома монолитный.цена указана при 100 оплате.мариин парк камерный проект премиумкласса от группы эталон созданный для тех, кто ценит свое время и комфорт, а его расположение станет дополнительным приятным преимуществом.от бессонных транспортных артерий города он надежно защищен соседними кварталами, при этом имеет прямой выезд на ттк и находится в 5 пеших минутах от станции метро марьина роща. здесь вы найдете долгожданное уединение и вместе с тем легко сможете войти в динамичный ритм городской жизни. центр и все знаковые маршруты находятся рядом, а исторический район города предлагает богатую инфраструктуру. визуальный облик дома выполнен в стиле модернизм. в качестве основного облицовочного материала используются крупноформатные керамогранитные панели с имитацией натурального белоснежного камня. арочный стиль, используемый в фасадном решении дома, придает ему особую элегантность, характерную для классических и исторических зданий. изящные арки обеспечивают фасадам легкость и динамику, а за счёт того, что этот приём используется на последних этажах и в стритритейле первого этажа, создаётся ощущение парящего фасада.на внутридомовой территории реализовано благоустройство, тщательно продуманное для различных сценариев дня. планировочные решения всех квартир разработаны таким образом, чтобы функциональность помещений дополняла комфорт проживания. в проекте представлен широкий выбор квартир различной комнатности и площадей.в мариин парк все направлено на удовлетворение высоких ожиданий его резидентов.
продается 1к квартира без отделки в жк мариин парк.общая площадь квартиры 41.7 кв. м, этаж 10 из 16.тип дома монолитный.цена указана при 100 оплате.мариин парк камерный проект премиумкласса от группы эталон созданный для тех, кто ценит свое время и комфорт, а его расположение станет дополнительным приятным преимуществом.от бессонных транспортных артерий города он надежно защищен соседними кварталами, при этом имеет прямой выезд на ттк и находится в 5 пеших минутах от станции метро марьина роща. здесь вы найдете долгожданное уединение и вместе с тем легко сможете войти в динамичный ритм городской жизни. центр и все знаковые маршруты находятся рядом, а исторический район города предлагает богатую инфраструктуру. визуальный облик дома выполнен в стиле модернизм. в качестве основного облицовочного материала используются крупноформатные керамогранитные панели с имитацией натурального белоснежного камня. арочный стиль, используемый в фасадном решении дома, придает ему особую элегантность, характерную для классических и исторических зданий. изящные арки обеспечивают фасадам легкость и динамику, а за счёт того, что этот приём используется на последних этажах и в стритритейле первого этажа, создаётся ощущение парящего фасада.на внутридомовой территории реализовано благоустройство, тщательно продуманное для различных сценариев дня. планировочные решения всех квартир разработаны таким образом, чтобы функциональность помещений дополняла комфорт проживания. в проекте представлен широкий выбор квартир различной комнатности и площадей.в мариин парк все направлено на удовлетворение высоких ожиданий его резидентов.
Похожие однокомнатные квартиры в районе Марьина роща





