Продается однокомнатная квартира
Озерная 21к1, район Очаково-Матвеевское
26.02.2026



Стоимость
12 490 000 ₽
367 352 рублей за м2
367 352 рублей за м2
Количество комнат
1 комн
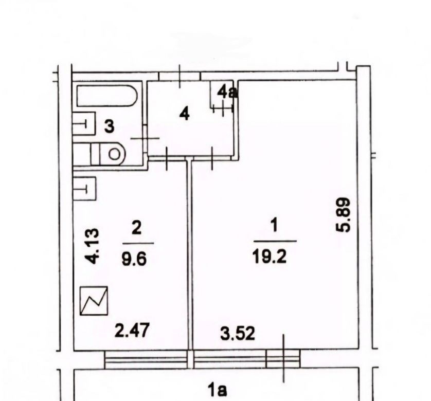
Общая площадь
34 м²
Этаж
10 из 16
Несуществующий объект, неправильная информация? - обязательно сообщите.
Дополнительная информация:
вашему вниманию предлагается уютная квартира с просторной кухней и лоджией в одном из самых перспективных районов москвы.отличная транспортная доступность.развитая инфраструктура.прогулочные зоны, парк, пруд....в собственности более 10 лет, один взрослый собственник, быстрый выход на сделку.звоните прямо сейчас, записывайтесь на просмотрпомощь в одобрении ипотеки на максимально выгодных условиях от банковпартнеров.объект 554422номер объекта 155442216438
вашему вниманию предлагается уютная квартира с просторной кухней и лоджией в одном из самых перспективных районов москвы.отличная транспортная доступность.развитая инфраструктура.прогулочные зоны, парк, пруд....в собственности более 10 лет, один взрослый собственник, быстрый выход на сделку.звоните прямо сейчас, записывайтесь на просмотрпомощь в одобрении ипотеки на максимально выгодных условиях от банковпартнеров.объект 554422номер объекта 155442216438
Похожие однокомнатные квартиры в районе Очаково-Матвеевское





