Продается однокомнатная квартира
Пенягинская 2К1, район Митино
10.02.2026

















Стоимость
24 000 000 ₽
233 009 рублей за м2
233 009 рублей за м2
Количество комнат
1 комн
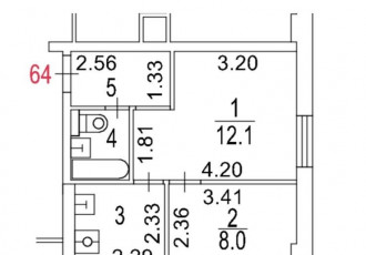
Общая площадь
103 м²
Этаж
4 из 9
Несуществующий объект, неправильная информация? - обязательно сообщите.
Дополнительная информация:
доммонолитного дома, 1999 года. 9 этажейдом оборудован пассажирскогрузовым лифтом, имеется мусоропроводназемная парковка, двор закрывает шлагбаумсистема видеонаблюдения в подъездах, а также по периметру домаквартираобщая площадь квартиры составляет 103 кв.м., кухня 12 кв.м. высота потолков 2.7 метра.планировка включает в себя один совмещенный и один отдельный санузел, что удобно для семьи или гостей. окна выходят во двор, что обеспечивает тишину и покой.выполнен качественный евроремонт, что создает уютную атмосферу для комфортного проживанияинфраструктураметро митино, всего в 15 минутах пешком от метро.рядом с домом находятся все необходимые объекты инфраструктуры школы и детские сады для детей, супермаркеты для повседневных покупок, митинский ландшафтный парк для позитивного отдыха.магазины и маркетплейсы в ближайшей доступностидокументывсе документы готовы к проверке
доммонолитного дома, 1999 года. 9 этажейдом оборудован пассажирскогрузовым лифтом, имеется мусоропроводназемная парковка, двор закрывает шлагбаумсистема видеонаблюдения в подъездах, а также по периметру домаквартираобщая площадь квартиры составляет 103 кв.м., кухня 12 кв.м. высота потолков 2.7 метра.планировка включает в себя один совмещенный и один отдельный санузел, что удобно для семьи или гостей. окна выходят во двор, что обеспечивает тишину и покой.выполнен качественный евроремонт, что создает уютную атмосферу для комфортного проживанияинфраструктураметро митино, всего в 15 минутах пешком от метро.рядом с домом находятся все необходимые объекты инфраструктуры школы и детские сады для детей, супермаркеты для повседневных покупок, митинский ландшафтный парк для позитивного отдыха.магазины и маркетплейсы в ближайшей доступностидокументывсе документы готовы к проверке
Похожие однокомнатные квартиры в районе Митино





