Продается однокомнатная квартира
Петра Кончаловского 7к1, район Даниловский
09.03.2026


Стоимость
28 500 000 ₽
606 382 рублей за м2
606 382 рублей за м2
Количество комнат
1 комн
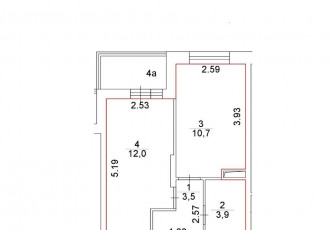
Общая площадь
47 м²
Этаж
12 из 17
Несуществующий объект, неправильная информация? - обязательно сообщите.
Дополнительная информация:
однокомнатная угловая с видом на реку квартира в жк шагал, корпус 7, секция 7.2. корпус сдан, выдача ключей до 30.06.26общая площадь47,6 кв.м, спальня 15, 9 кв.2, полностью застекленный балконодин собственник, быстрый выход на сделку, полная стоимость в дкп.
однокомнатная угловая с видом на реку квартира в жк шагал, корпус 7, секция 7.2. корпус сдан, выдача ключей до 30.06.26общая площадь47,6 кв.м, спальня 15, 9 кв.2, полностью застекленный балконодин собственник, быстрый выход на сделку, полная стоимость в дкп.
Похожие однокомнатные квартиры в районе Даниловский





