Продается двухкомнатная квартира
просп. Лихачева 12к3, район Даниловский
03.02.2026












Стоимость
21 500 000 ₽
614 285 рублей за м2
614 285 рублей за м2
Количество комнат
2 комн
Общая площадь
35 м²
Этаж
4 из 10
Несуществующий объект, неправильная информация? - обязательно сообщите.
Дополнительная информация:
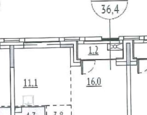
продается уютная евро 2комнатная квартира в современном монолитном доме 2022 года постройки. общая площадь квартиры составляет 35.4 кв. м, жилая площадь 16 кв. м, а просторная кухня 11 кв. м. квартира расположена на 4 этаже 10этажного здания. высокие потолки 3 метра создают ощущение простора, а окна, выходящие во двор, обеспечивают тишину и спокойствие.квартира без ремонта, поэтому у вас есть уникальная возможность обустроить её по своему вкусу и создать пространство, которое полностью соответствует вашим пожеланиям. планировка предусматривает совмещенный санузел и наличие одной лоджии.дом оснащен пассажирским и грузовым лифтами, что делает перемещение комфортным. важно отметить, что дом является частью нового жилого комплекса с ухоженной территорией и современными инфраструктурными решениями.район предлагает развитую инфраструктуру в пешей доступности находятся школы, детские сады, клиники и магазины, что делает его идеальным для семейного проживания. до станции метро технопарк всего 11 минут пешком, что обеспечивает удобный доступ к общественному транспорту и позволяет быстро добраться до центра москвы.продажа квартиры осуществляется без обременений, что значительно упрощает процесс покупки. возможна ипотека, все юридические вопросы чисты и прозрачны. приглашаем вас на просмотр, чтобы лично оценить все преимущества этой квартиры. записывайтесь на удобное для вас время и станьте обладателем нового жилья в одном из самых перспективных районов москвы.
продается уютная евро 2комнатная квартира в современном монолитном доме 2022 года постройки. общая площадь квартиры составляет 35.4 кв. м, жилая площадь 16 кв. м, а просторная кухня 11 кв. м. квартира расположена на 4 этаже 10этажного здания. высокие потолки 3 метра создают ощущение простора, а окна, выходящие во двор, обеспечивают тишину и спокойствие.квартира без ремонта, поэтому у вас есть уникальная возможность обустроить её по своему вкусу и создать пространство, которое полностью соответствует вашим пожеланиям. планировка предусматривает совмещенный санузел и наличие одной лоджии.дом оснащен пассажирским и грузовым лифтами, что делает перемещение комфортным. важно отметить, что дом является частью нового жилого комплекса с ухоженной территорией и современными инфраструктурными решениями.район предлагает развитую инфраструктуру в пешей доступности находятся школы, детские сады, клиники и магазины, что делает его идеальным для семейного проживания. до станции метро технопарк всего 11 минут пешком, что обеспечивает удобный доступ к общественному транспорту и позволяет быстро добраться до центра москвы.продажа квартиры осуществляется без обременений, что значительно упрощает процесс покупки. возможна ипотека, все юридические вопросы чисты и прозрачны. приглашаем вас на просмотр, чтобы лично оценить все преимущества этой квартиры. записывайтесь на удобное для вас время и станьте обладателем нового жилья в одном из самых перспективных районов москвы.
Похожие двухкомнатные квартиры в районе Даниловский





