Продается однокомнатная квартира
просп. Вернадского 127, район Тропарево-Никулино
19.01.2026





Стоимость
14 500 000 ₽
402 777 рублей за м2
402 777 рублей за м2
Количество комнат
1 комн
Общая площадь
36 м²
Этаж
3 из 16
Несуществующий объект, неправильная информация? - обязательно сообщите.
Дополнительная информация:
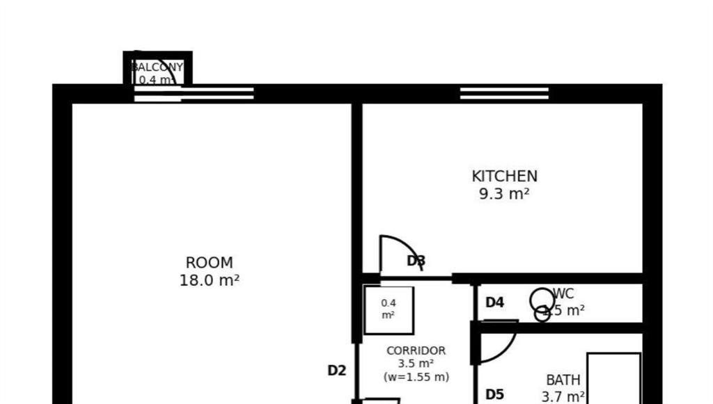
светлая 1комнатная квартира на 3м этаже с раздельным санузлом метро университет дружбы народов в 4 минутахдом панельный дом 1978 года, 16 этажей, 8 подъездов большой жилой комплекс. этаж 3 из 16 удобный уровень. 2 пассажирских лифта, мусоропровод, наземная парковка во дворе. центральное отопление и водоснабжение. хорошо организованный жилой комплекс советского периода.квартира 1комнатная, 36 м² жилая 18 м², кухня 9,3 м², 3й этаж. светлая квартира. изолированная комната 18 м² с хорошей шумоизоляцией тихо и спокойно. просторная кухня 9,3 м² редкость для однокомнатной. раздельный санузел удобство. 1 балкон. с мебелью готова к жизни. договор дарения более 15 лет. 1 взрослый собственник, 1 прописанный условие покупки.район проспект вернадского, дом 127, тропарёвоникулино зао, престижный и экологически чистый район югозапада москвы. рядом детские сады, школы, вузы мгу, мгимо, ранхигс, рудн, парки. озеленённый район, красивая архитектура.транспортная доступность 4 минуты пешком до метро университет дружбы народов сокольническая линия одна из ближайших станций в москве 12 минут пешком до метро югозападная двойной пересадочный узел сокольническая бкл 14 минут пешком до метро тропарёво троицкая линия бкл тройная транспортная узлость максимальная гибкость 2025 минут в центр москвы ленинский и проспект вернадского основные магистрали развитая наземная сеть автобусов выезд на ттк и мкаддокументы договор дарения более 15 лет, 1 взрослый собственник. прописан 1 человек. свободная продажа. возможна ипотека.преимущества 4 минуты пешком до метро университет дружбы народов одна из самых близких к метро квартир в москве три станции метро рядом университет, югозападная, тропарёво в пешей доступности светлая квартира максимум естественного света 3й этаж удобный уровень без высоты, хороший свет изолированная комната 18 м² просторная и тихая, хорошая шумоизоляция просторная кухня 9,3 м² редкость для однокомнатной раздельный санузел удобство, практичность 1 балкон свежий воздух и дополнительное пространство с мебелью сразу можно жить 2 пассажирских лифта комфорт и скорость подъёма мусоропровод удобство избавления от отходов наземная парковка во дворе машина рядом 8 подъездов большой комплекс с активной жизнью престижный югозапад москвы один из лучших районов экологически чистый район парки и озеленение рядом вузы мирового уровня мгу, мгимо, ранхигс, рудн детские сады и школы рядом для семей 2025 минут в центр удобная доступность договор дарения более 15 лет стабильность и надёжностьсветлая квартира в престижном районе с рекордной близостью к трём метро идеальный выбор для студента, молодого специалиста или инвестора
светлая 1комнатная квартира на 3м этаже с раздельным санузлом метро университет дружбы народов в 4 минутахдом панельный дом 1978 года, 16 этажей, 8 подъездов большой жилой комплекс. этаж 3 из 16 удобный уровень. 2 пассажирских лифта, мусоропровод, наземная парковка во дворе. центральное отопление и водоснабжение. хорошо организованный жилой комплекс советского периода.квартира 1комнатная, 36 м² жилая 18 м², кухня 9,3 м², 3й этаж. светлая квартира. изолированная комната 18 м² с хорошей шумоизоляцией тихо и спокойно. просторная кухня 9,3 м² редкость для однокомнатной. раздельный санузел удобство. 1 балкон. с мебелью готова к жизни. договор дарения более 15 лет. 1 взрослый собственник, 1 прописанный условие покупки.район проспект вернадского, дом 127, тропарёвоникулино зао, престижный и экологически чистый район югозапада москвы. рядом детские сады, школы, вузы мгу, мгимо, ранхигс, рудн, парки. озеленённый район, красивая архитектура.транспортная доступность 4 минуты пешком до метро университет дружбы народов сокольническая линия одна из ближайших станций в москве 12 минут пешком до метро югозападная двойной пересадочный узел сокольническая бкл 14 минут пешком до метро тропарёво троицкая линия бкл тройная транспортная узлость максимальная гибкость 2025 минут в центр москвы ленинский и проспект вернадского основные магистрали развитая наземная сеть автобусов выезд на ттк и мкаддокументы договор дарения более 15 лет, 1 взрослый собственник. прописан 1 человек. свободная продажа. возможна ипотека.преимущества 4 минуты пешком до метро университет дружбы народов одна из самых близких к метро квартир в москве три станции метро рядом университет, югозападная, тропарёво в пешей доступности светлая квартира максимум естественного света 3й этаж удобный уровень без высоты, хороший свет изолированная комната 18 м² просторная и тихая, хорошая шумоизоляция просторная кухня 9,3 м² редкость для однокомнатной раздельный санузел удобство, практичность 1 балкон свежий воздух и дополнительное пространство с мебелью сразу можно жить 2 пассажирских лифта комфорт и скорость подъёма мусоропровод удобство избавления от отходов наземная парковка во дворе машина рядом 8 подъездов большой комплекс с активной жизнью престижный югозапад москвы один из лучших районов экологически чистый район парки и озеленение рядом вузы мирового уровня мгу, мгимо, ранхигс, рудн детские сады и школы рядом для семей 2025 минут в центр удобная доступность договор дарения более 15 лет стабильность и надёжностьсветлая квартира в престижном районе с рекордной близостью к трём метро идеальный выбор для студента, молодого специалиста или инвестора
Похожие однокомнатные квартиры в районе Тропарево-Никулино





