Продается двухкомнатная квартира
Снежная 22с3, район Свиблово
24.04.2026













Стоимость
32 000 000 ₽
615 384 рублей за м2
615 384 рублей за м2
Количество комнат
2 комн
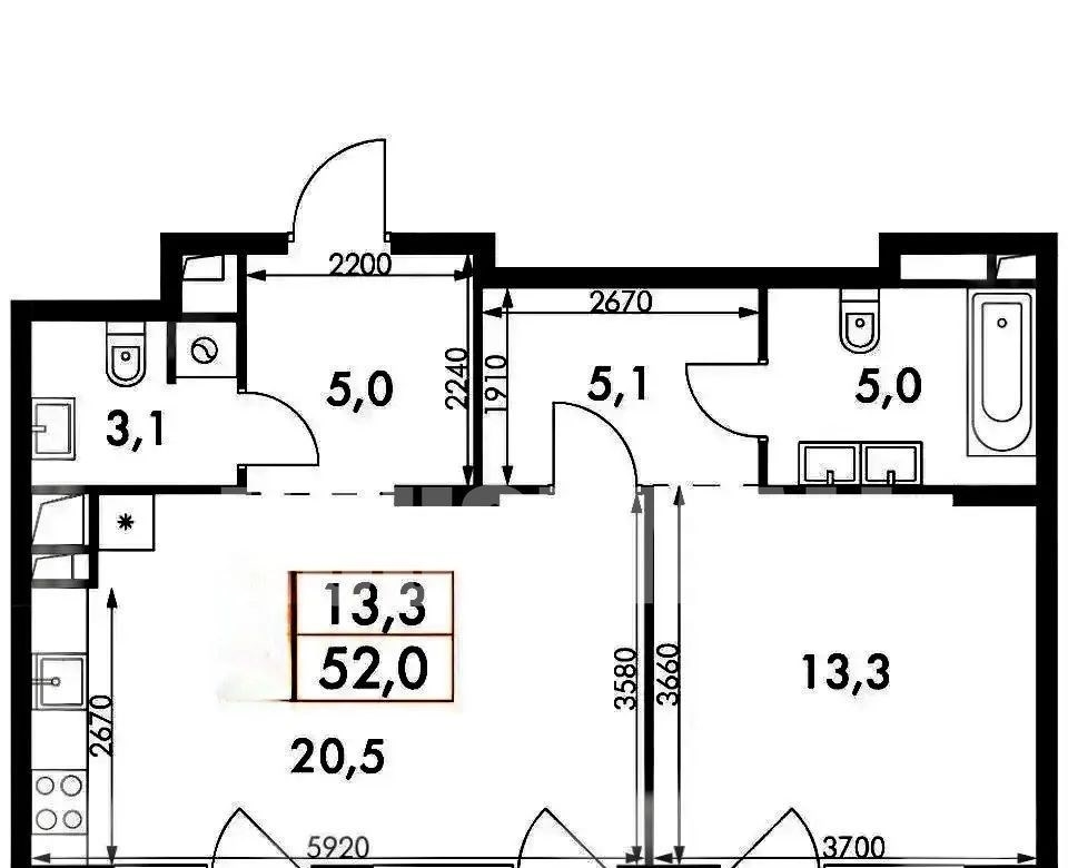
Общая площадь
52 м²
Этаж
2 из 16
Несуществующий объект, неправильная информация? - обязательно сообщите.
Дополнительная информация:
оперативный показ на связи 1000 до 2100продается 2комнатная квартира с панорамным видом на озеро в клубном доме жк the lake.площадь 52 м², потолки 3,3 м. формат white box идеальная база для реализации индивидуального дизайнпроекта без лишних затрат. планировка функциональная и гибкая возможно организовать полноценный формат с двумя изолированными комнатами и кухнейгостиной. предусмотрены гардеробная 5 м² и два санузла редкое преимущество для данного метража. окна выходят на юговосток, квартира наполнена светом, из окон открывается прямой вид на капустинский пруд.клубный дом всего 118 квартир, камерная атмосфера и высокий уровень приватности. в непосредственной близости находится ключевая точка притяжения комплекса парящий сад, создающий уникальное пространство для отдыха и прогулок.локация сочетает природу и город рядом шесть парков, развитая инфраструктура, школы, детские сады и тц. пешая доступность до метро свиблово, ботанический сад и мцк.один собственник, без обременений, свободная продажа. оперативный показ и быстрый выход на сделку.
оперативный показ на связи 1000 до 2100продается 2комнатная квартира с панорамным видом на озеро в клубном доме жк the lake.площадь 52 м², потолки 3,3 м. формат white box идеальная база для реализации индивидуального дизайнпроекта без лишних затрат. планировка функциональная и гибкая возможно организовать полноценный формат с двумя изолированными комнатами и кухнейгостиной. предусмотрены гардеробная 5 м² и два санузла редкое преимущество для данного метража. окна выходят на юговосток, квартира наполнена светом, из окон открывается прямой вид на капустинский пруд.клубный дом всего 118 квартир, камерная атмосфера и высокий уровень приватности. в непосредственной близости находится ключевая точка притяжения комплекса парящий сад, создающий уникальное пространство для отдыха и прогулок.локация сочетает природу и город рядом шесть парков, развитая инфраструктура, школы, детские сады и тц. пешая доступность до метро свиблово, ботанический сад и мцк.один собственник, без обременений, свободная продажа. оперативный показ и быстрый выход на сделку.
Похожие двухкомнатные квартиры в районе Свиблово





