Продается однокомнатная квартира
Сумская 6К4, район Чертаново Северное
14.11.2025







Стоимость
11 700 000 ₽
344 117 рублей за м2
344 117 рублей за м2
Количество комнат
1 комн
Общая площадь
34 м²
Этаж
8 из 9
Несуществующий объект, неправильная информация? - обязательно сообщите.
Дополнительная информация:
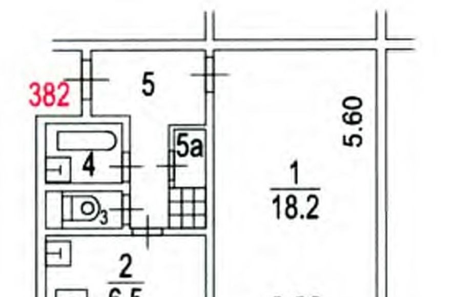
агентам без клиентов не звонить в услугах не нуждаюсь пешая доступность до метро 3 минуты развитая инфраструктурадом после капитального ремонта.в квартире никогда не было ни тараканов ни клопов. чистый ухоженный подъезд, приятные соседи. планировка на фото квартира под ремонт. перепланировок не было.без долгов и обременений. никто не прописан. один взрослый собственник.
агентам без клиентов не звонить в услугах не нуждаюсь пешая доступность до метро 3 минуты развитая инфраструктурадом после капитального ремонта.в квартире никогда не было ни тараканов ни клопов. чистый ухоженный подъезд, приятные соседи. планировка на фото квартира под ремонт. перепланировок не было.без долгов и обременений. никто не прописан. один взрослый собственник.
Похожие однокомнатные квартиры в районе Чертаново Северное





