Продается двухкомнатная квартира
Виктора Маслова 2, район Даниловский
09.03.2026










Стоимость
34 500 000 ₽
530 769 рублей за м2
530 769 рублей за м2
Количество комнат
2 комн
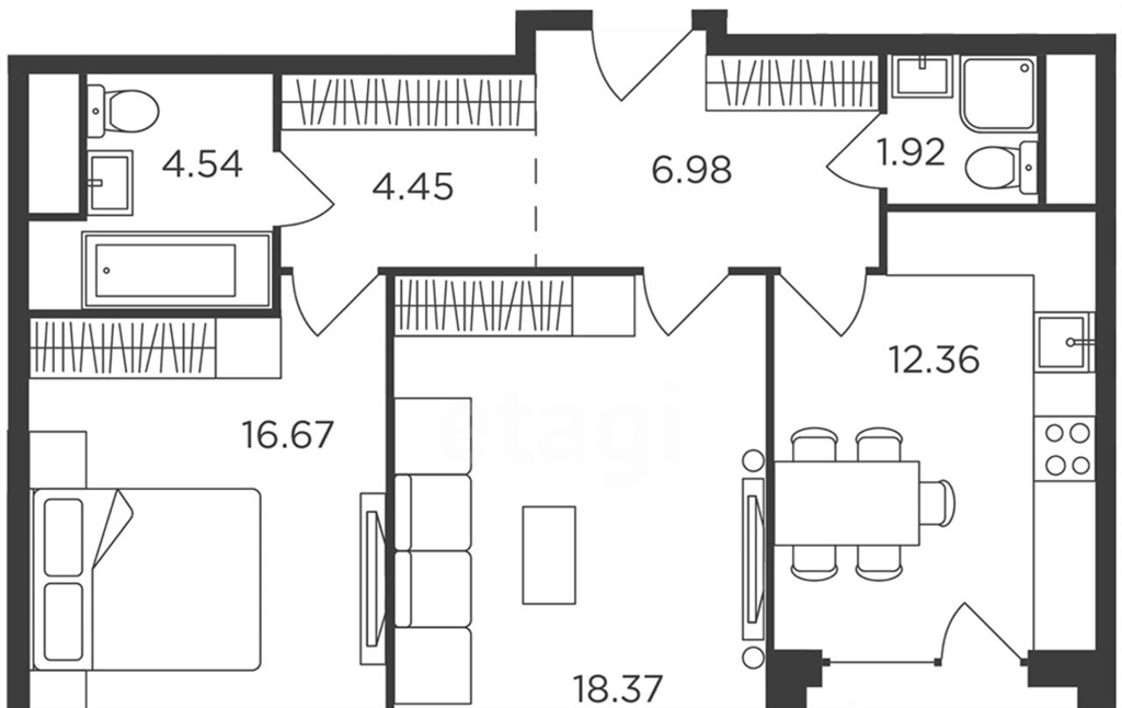
Общая площадь
65 м²
Этаж
6 из 21
Несуществующий объект, неправильная информация? - обязательно сообщите.
Дополнительная информация:
номер в базе 11940554. 65,4 м² в riversky на набережной москвыреки. планировка, которую можно сделать под себя.квартира без отделки, поэтому здесь легко реализовать именно тот формат жизни, который вам ближе.можно сделать две полноценные спальни с кухней, а можно просторную кухнюгостиную и мастерспальню. оба варианта отлично ложатся в планировку.площадь 65,4 м² позволяет комфортно разместить кухнюгостиную одну или две спальни гардеробную два санузла, один из которых в мастерспальне.отдельное преимущество лоджиятерраса. пространство, где можно поставить столик для завтраков, кресло для вечернего чтения или небольшой зелёный уголок.riversky камерный жилой комплекс бизнескласса на первой линии москвыреки. закрытая территория, дворы без машин, ландшафтные зоны отдыха, детские и спортивные площадки, подземный паркинг и консьерж в лобби. здесь спокойнее и тише, чем в крупных проектах с плотной застройкой атмосфера больше похожа на европейские кварталы у воды.локация при этом остаётся центральной несколько минут до ттк, около 1015 минут до центра города. рядом крутицкая набережная для прогулок и пробежек, стадион им. эдуарда стрельцова, школы, детские сады, кафе и магазины.квартира подойдёт тем, кто хочет создать интерьер под себя в современном доме у воды и в локации, которая со временем только усиливает свою ценность.код пользователя 56115
номер в базе 11940554. 65,4 м² в riversky на набережной москвыреки. планировка, которую можно сделать под себя.квартира без отделки, поэтому здесь легко реализовать именно тот формат жизни, который вам ближе.можно сделать две полноценные спальни с кухней, а можно просторную кухнюгостиную и мастерспальню. оба варианта отлично ложатся в планировку.площадь 65,4 м² позволяет комфортно разместить кухнюгостиную одну или две спальни гардеробную два санузла, один из которых в мастерспальне.отдельное преимущество лоджиятерраса. пространство, где можно поставить столик для завтраков, кресло для вечернего чтения или небольшой зелёный уголок.riversky камерный жилой комплекс бизнескласса на первой линии москвыреки. закрытая территория, дворы без машин, ландшафтные зоны отдыха, детские и спортивные площадки, подземный паркинг и консьерж в лобби. здесь спокойнее и тише, чем в крупных проектах с плотной застройкой атмосфера больше похожа на европейские кварталы у воды.локация при этом остаётся центральной несколько минут до ттк, около 1015 минут до центра города. рядом крутицкая набережная для прогулок и пробежек, стадион им. эдуарда стрельцова, школы, детские сады, кафе и магазины.квартира подойдёт тем, кто хочет создать интерьер под себя в современном доме у воды и в локации, которая со временем только усиливает свою ценность.код пользователя 56115
Похожие двухкомнатные квартиры в районе Даниловский





