Продается двухкомнатная квартира
Зорге вл5с17, район Хорошевский
09.01.2026










Стоимость
25 621 877 ₽
556 997 рублей за м2
556 997 рублей за м2
Количество комнат
2 комн
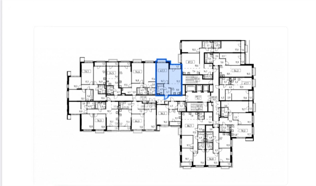
Общая площадь
46 м²
Этаж
3 из 16
Несуществующий объект, неправильная информация? - обязательно сообщите.
Дополнительная информация:
арт. 128509542 ваш адрес это уже статус. вы сворачиваете с шумного садового кольца и через минуту оказываетесь здесь, в мире, где время течёт иначе. дом на зорге не просто корпус из кирпича и стекла. это спокойный, уверенный штрих в богемной карте хамовников. и на его 3м этаже есть ваше пространство.третий этаж это золотая середина. вы в достаточной высоте, чтобы чувствовать приватность и ловить солнце в больших окнах, но при этом не оторваны от земли. вы слышите шелест листьев старых деревьев во дворе, а не шум машин. вечером, выглянув в окно, вы видите не просто двор, а уютно освещённые витрины кофейни через дорогу и силуэты людей, идущих смотреть новый спектакль.обеденный перерыв можно провести не на кухне, а на прогулке по тихим переулкам, ведущим к новодевичьему монастырю, или в тенистом сквере девичьего поля.квартира формата 2е это просторная единая гостинаякухня, где можно принимать друзей, и две изолированные спальни одна для вас, вторая для гостей, ребёнка или идеального кабинета с видом на тихий двор. высокие потолки и панорамное остекление наполняют каждый уголок светом, который так ценен в центре города.отделка подчистовая, а это значит, что вы можете воплотить свои идеи по ремонту в жизнь.это предложение для того, кто ищет не квадратные метры, а окружение. кто хочет жить в истории, но с комфортом современности. кто ценит тишину внутреннего двора дома на зорге и в то же время знает, что вся культурная жизнь москвы у него под боком.здесь вы не существуете. вы живёте. на полную.готовы начать свою историю на зоргезвоните на приватный показ, чтобы почувствовать атмосферу этого места.
арт. 128509542 ваш адрес это уже статус. вы сворачиваете с шумного садового кольца и через минуту оказываетесь здесь, в мире, где время течёт иначе. дом на зорге не просто корпус из кирпича и стекла. это спокойный, уверенный штрих в богемной карте хамовников. и на его 3м этаже есть ваше пространство.третий этаж это золотая середина. вы в достаточной высоте, чтобы чувствовать приватность и ловить солнце в больших окнах, но при этом не оторваны от земли. вы слышите шелест листьев старых деревьев во дворе, а не шум машин. вечером, выглянув в окно, вы видите не просто двор, а уютно освещённые витрины кофейни через дорогу и силуэты людей, идущих смотреть новый спектакль.обеденный перерыв можно провести не на кухне, а на прогулке по тихим переулкам, ведущим к новодевичьему монастырю, или в тенистом сквере девичьего поля.квартира формата 2е это просторная единая гостинаякухня, где можно принимать друзей, и две изолированные спальни одна для вас, вторая для гостей, ребёнка или идеального кабинета с видом на тихий двор. высокие потолки и панорамное остекление наполняют каждый уголок светом, который так ценен в центре города.отделка подчистовая, а это значит, что вы можете воплотить свои идеи по ремонту в жизнь.это предложение для того, кто ищет не квадратные метры, а окружение. кто хочет жить в истории, но с комфортом современности. кто ценит тишину внутреннего двора дома на зорге и в то же время знает, что вся культурная жизнь москвы у него под боком.здесь вы не существуете. вы живёте. на полную.готовы начать свою историю на зоргезвоните на приватный показ, чтобы почувствовать атмосферу этого места.
Похожие двухкомнатные квартиры в районе Хорошевский





