Продается двухкомнатная квартира
Зубовский бул 29, район Хамовники
19.01.2026














Стоимость
19 500 000 ₽
527 027 рублей за м2
527 027 рублей за м2
Количество комнат
2 комн
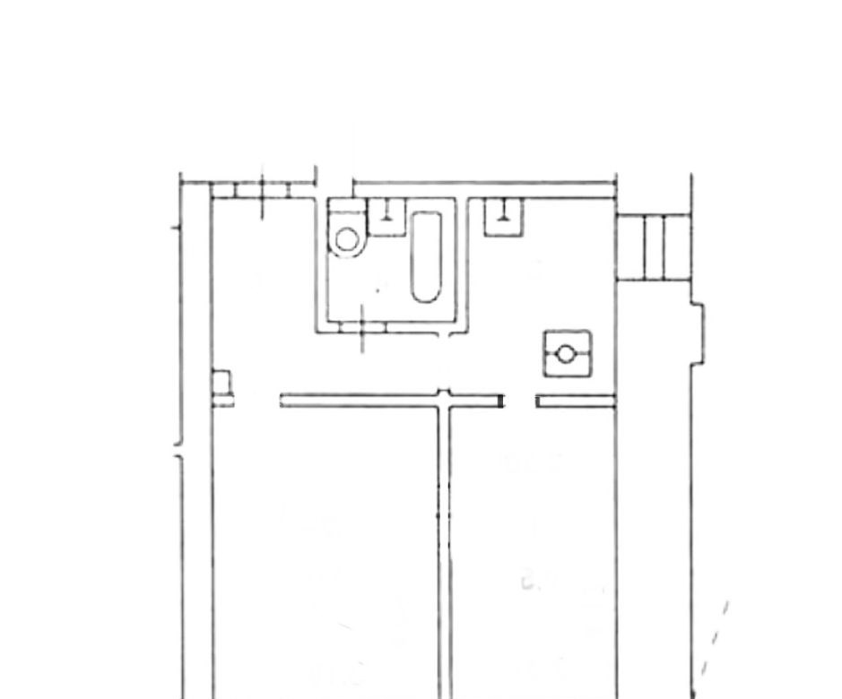
Общая площадь
37 м²
Этаж
1 из 5
Несуществующий объект, неправильная информация? - обязательно сообщите.
Дополнительная информация:
один собственник. в собственности более 20 лет.окна выходят во двор. высота потолка 3.2 метра.перепланировок нет.санузел совмещенный.перекрытия железно бетонные.
один собственник. в собственности более 20 лет.окна выходят во двор. высота потолка 3.2 метра.перепланировок нет.санузел совмещенный.перекрытия железно бетонные.
Похожие двухкомнатные квартиры в районе Хамовники





