Продается однокомнатная квартира
Горбунова вл27, район Можайский
13.04.2026









Стоимость
14 196 848 ₽
507 030 рублей за м2
507 030 рублей за м2
Количество комнат
1 комн
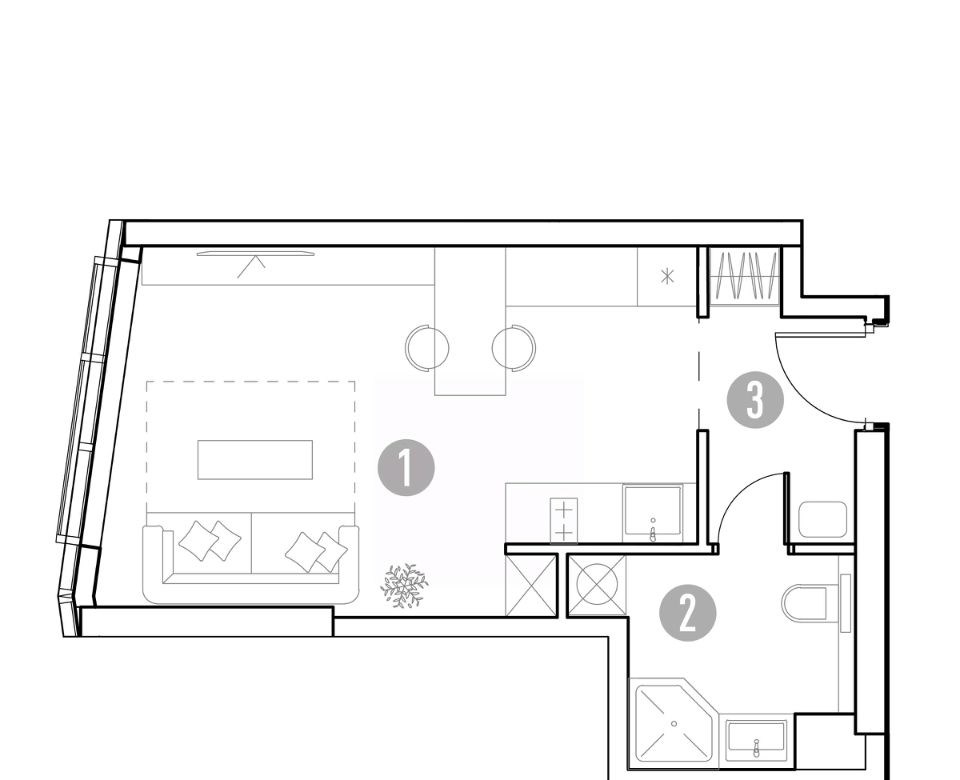
Общая площадь
28 м²
Этаж
10 из 35
Несуществующий объект, неправильная информация? - обязательно сообщите.
Дополнительная информация:
продается 1к квартира площадью 28.64 кв.м. на 10м этаже 35 этажного дома в жк уно горбунова от гк основа. старт продаж жилой комплекс уно горбунова современное решение для комфортного проживания в западном округе москвы, всего в 20 минутах от арбата. стильная архитектура с волнообразными фасадами, продуманные планировки квартир и уютный благоустроенный двор всё создает комфортную атмосферу для жизни. комплекс расположен в можайском районе, что обеспечивает легкий доступ к транспортным маршрутам станция мцд сетунь в шаговой доступности, до метро молодежная всего 10 минут на транспорте, а для автомобилистов удобные выезды на ключевые магистрали.
продается 1к квартира площадью 28.64 кв.м. на 10м этаже 35 этажного дома в жк уно горбунова от гк основа. старт продаж жилой комплекс уно горбунова современное решение для комфортного проживания в западном округе москвы, всего в 20 минутах от арбата. стильная архитектура с волнообразными фасадами, продуманные планировки квартир и уютный благоустроенный двор всё создает комфортную атмосферу для жизни. комплекс расположен в можайском районе, что обеспечивает легкий доступ к транспортным маршрутам станция мцд сетунь в шаговой доступности, до метро молодежная всего 10 минут на транспорте, а для автомобилистов удобные выезды на ключевые магистрали.
Похожие однокомнатные квартиры в районе Можайский





